Gepflegte Erdgeschoss – Wohnung mit Stellplatz in Bungerhof
Eckdaten
- Art Wohnung
- Lage 27753 Delmenhorst
- Kaufpreis 155.000,00 €
- Preis auf Anfrage nein
- Hausgeld 159,00 €
- Wohnfläche ca. 57 m²
- Zimmer 2
- Kellerfläche ca. 5 m²
- Baujahr 1997
- Etagenzahl 2
- Heizungsart Gas-Heizung
- Einbauküche ja
- Gäste-WC nein
- Stellplatztyp Aussenstellplatz
- Stellplatzanzahl 1
- Vermietet nein
- Ausstattung des Bades Dusche Fenster
- Zustand Gepflegt
- Immobilien-ID 734
- Provision 3,57 inkl. MwSt.
Immobilie
Diese gepflegte Wohnanlage mit 33 Einheiten in vier Einzelhäusern wurde in den Jahren 1996 und 1997 errichtet.
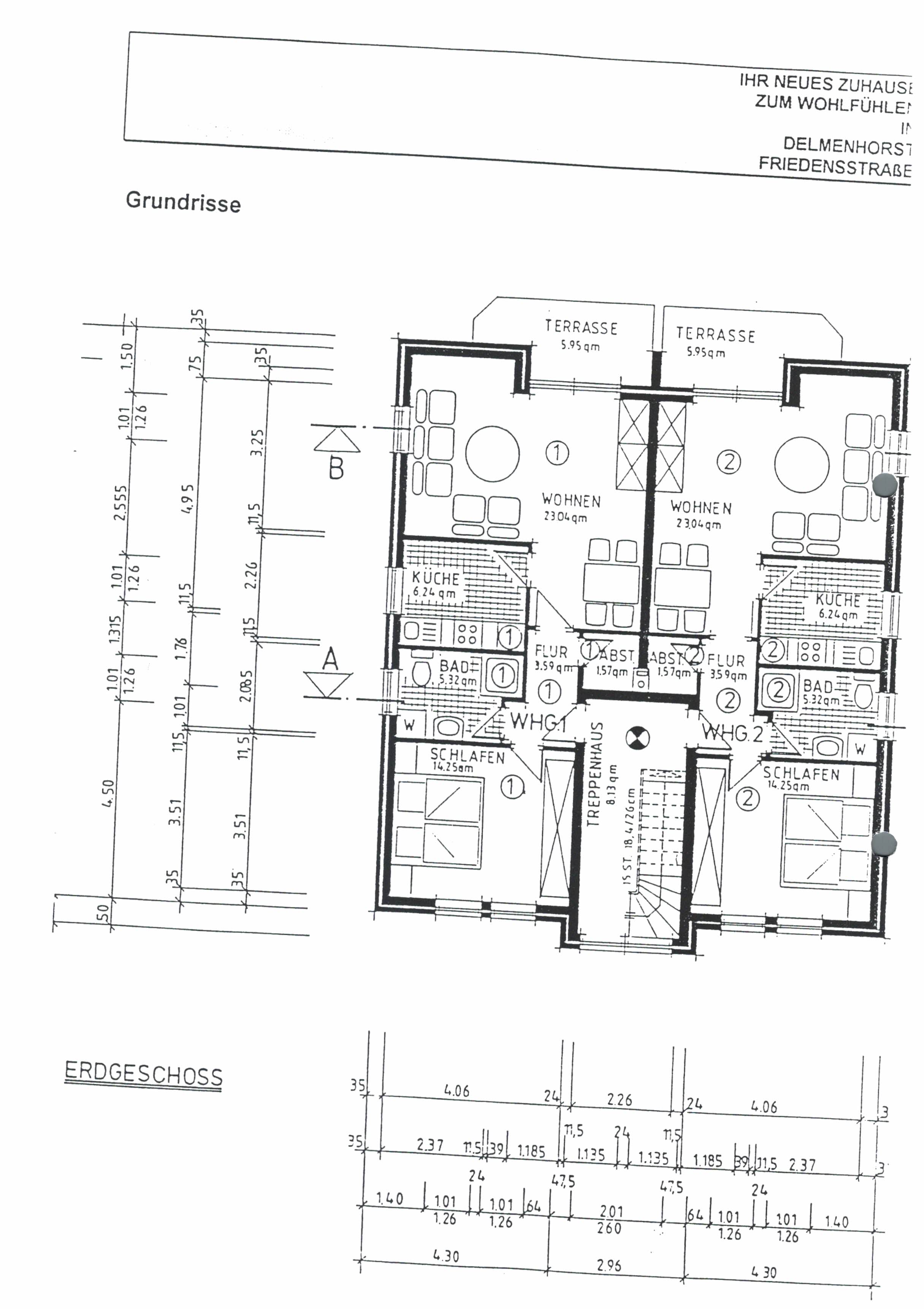
Die angebotene Wohnung liegt im Erdgeschoss und verfügt über ein großen Wohnzimmer, ein Schlafzimmer, Küche, Duschbad, Flur sowie Abstellraum und Terrasse.
Die Küche ist mit einer Einbauküche ausgestattet, die Dusche im Badezimmer wurde gerade erneuert. Sämtliche Fenster haben Rollläden.
Ihr Fahrzeug parken Sie auf dem Außenstellplatz der Wohnung. Weiter bietet ein eigener Kellerraum Platz zum Unterbringen persönlicher nicht täglich gebrauchter Gegenstände, einen Fahrradkeller, einen Trockenraum sowie einen Raum für die Versorgung der Einheit.
Lage
Die Wohnung befindet sich im Stadtteil Bungerhof im Norden von Delmenhorst.
Einkaufsmöglichkeiten und ärztliche Versorgung sind in der Umgebung vorhanden.
Ausstattung
Wohnen ca. 23 m²
Schlafen ca. 14,2 m²
Küche ca. 6,2 m²
Bad ca. 5,3 m²
Flur ca. 3,6 m²
Abstellraum ca. 1,6 m²
Terrasse ca. 6 m²
Einbauküche
Dusche neu
Rollläden
Terrasse
Stellplatz
Keller
Fahrradkeller
Trockenraum
Energieausweisangaben
- Enerigeausweistyp Verbrauchsausweis
- Energiekennwert 115 KWh(m²*a)
- Energieeffizienzklasse D
- Energie mit Warmwasser ja
- Energieausweis erstellt am 05.09.2018
- Energieausweis gültig bis 04.09.2028
- Heizungsart Gas-Heizung
- Befeuerung / Energieträger Erdgas leicht
Weitere Informationen
Herzlichen Dank für Ihre Anfrage.
Wir werden diese so schnell wie möglich bearbeiten.
